この物件の情報は「掲載日」時点の内容になります。
お探しの物件の最新の状況は以下ボタンよりお問い合わせお願いします。
お問い合わせ
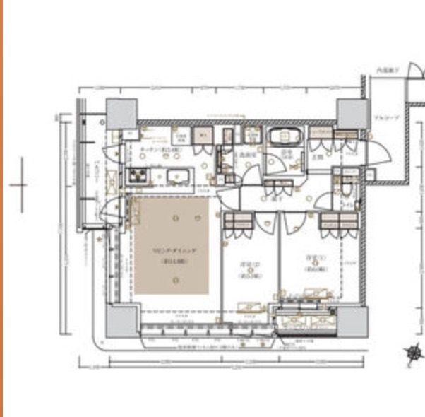
部屋ID:R008250
賃料: 275,000円
共益費・管理費:35,000円
最寄駅1:大阪メトロ四つ橋線「肥後橋」駅まで 徒歩2分
最寄駅2:大阪メトロ御堂筋線「淀屋橋」駅まで 徒歩5分
最寄駅3:京阪中之島線「中之島」駅まで 徒歩12分
現状:空室
所在地: 大阪府大阪市西区江戸堀1丁目22
成約状況:空室
物件種別:賃貸マンション
物件階層:34階建
完成年月:令和6年1月(築2年)
取引形態:ー
EV:あり
掲載日時:2026-05-01
所在階数:4階
方角:
敷金:275,000円
礼金:550,000円(税別)
保証金:0円
解約引:ー円
その他費用:ネット使用料:2,772円 室内清掃費用 退去時 71,500円(税込)
火災保険:ー円(非課税)
契約種別:普通借家
契約期間:1年