この物件の情報は「掲載日」時点の内容になります。
お探しの物件の最新の状況は以下ボタンよりお問い合わせお願いします。
お問い合わせ意外と多いですよね このエリアが好きな人
都心部にしては駅からは若干離れますが
その分、閑静な雰囲気
中大江公園・北大江公園と 近くに都心公園が充実
大阪メトロ谷町線・京阪本線 「天満橋駅」
大阪メトロ谷町線・中央線 「谷町四丁目駅」
大阪メトロ堺筋線・京阪本線 「北浜駅」
大坂メトロ堺筋線・中央線 「堺筋本町駅」
四方に駅があり ちょうどその中心辺りに位置します
4路線4駅利用可能!! だけど8〜10分程歩きます
これを交通至便と考えるか
交通不便と考えるかは貴方次第です
色々な方面に移動する方にとっては便利ですかね
生活自体は便利ですよね
職住近接を心掛けたまちづくりの大阪
近所にはしっかりとスーパーもあります
そして都心部特有の喧騒は少なく
基本的にはビジネス街となりますので
土・日・祝や夜間は非常に静かに過ごせます
ニューライフ大手前三番館
また、この建物の特徴は「事務所利用可能」
都心部立地のニューライフシリーズの特徴とも言えます
生活している方も沢山おりますが
この立地ですからね
事務所利用も結構おります
エントランス部分も重厚感があり
古き良き事務所ビル感を感じる事が出来ます
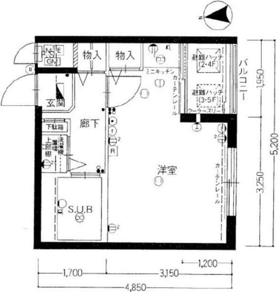
そして該当のお部屋は
「住居・事務所」
基本は住居使い
こじんまりとした来客の少ない
事務所として使用、といった感じですね
静かなエリアではありますが
基本的に立地が良いので
賃貸収益物件としても十分な需要があります
昭和60年築の新耐震物件
まだまだ使える現役建物なので
とりあえず自己使用して
不要になれば賃貸というのもありです
むしろそう言った使い方が
一番正しいのかも知れませんね。
想定賃料:55,000円
想定年収:660,000円
表面利回り:約5.59%
新耐震とは言え1985年築の物件で
表面利回り6%を下回るのは結構厳しめ
純粋に投資物件として買うより
自分がある程度使用したい方
使用後に賃貸してある程度の収益を得たら売却
それが一番賢いのかも知れませんね。
ーーーーーーーーーーーーーーーーーーーーー
リノベーション収益/提案が得意な不動産会社
不動産の管理・運用・総合コンサルティング
お気軽にご相談下さい。

部屋ID:R010360
販売希望価格:1,180万円(税込)
最寄駅1:大阪メトロ谷町線「天満橋」駅まで 徒歩7分
最寄駅2:京阪本線「天満橋」駅まで 徒歩7分
最寄駅3:大阪メトロ中央線「谷町四丁目」駅まで 徒歩10分
現状:空室
所在地: 大阪府大阪市中央区内平野町2丁目
物件種別:区分所有
物件構造:鉄骨鉄筋コンクリート造
物件階層:11階建
完成年月:昭和60年7月(築41年)
取引形態:仲介
EV:あり
用途:住居・事務所・収益
建ぺい率:
容積率:
掲載日時:2026-03-28
所在階数:5階
総戸数:60戸
方角:南
管理費:6,110円
修繕積立金:5,170円
その他費用:ー
現状年収:ー円
利回り:%
満室年収:ー円