**プレジオ松屋町:快適な生活空間を提供する賃貸マンション**
大阪市中央区松屋町住吉に位置する「プレジオ松屋町」は、賃貸マンションとして理想的な住環境を提供します。
この物件は、最寄り駅である大阪メトロ長堀鶴見緑地線の松屋町駅から徒歩わずか4分という利便性の高い立地にあり、通勤や通学に非常に便利です。
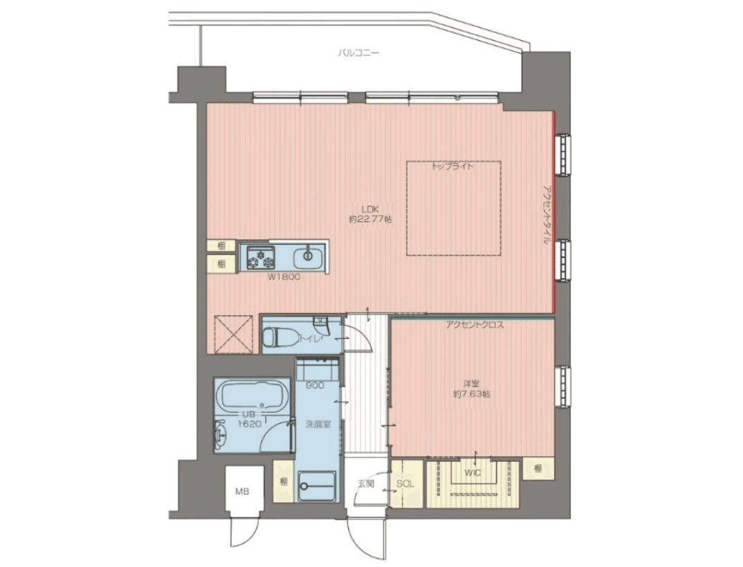
物件の間取りは1LDKで、広々としたリビングダイニングが特徴です。
特にLDKは20帖以上の広さがあり、家族や友人との団らんにぴったりの空間です。
さらに、角部屋であり、最上階に位置しているため、自然光がたっぷりと入ります。
これにより、明るく開放感のある生活空間を実現しています。
築浅のため、室内は非常にきれいで、最新の設備が整っています。
ガスキッチンやシステムキッチン、カウンターキッチンを完備しており、料理を楽しむ方にも満足していただけるでしょう。
また、3口以上のコンロがあるため、同時に複数の料理を作ることが可能です。
バストイレは別々で、ウォシュレットや浴室乾燥機も完備されており、快適なバスタイムをサポートします。
収納スペースも充実しています。2ヶ所以上のクローゼットに加え、ウォークインクローゼットも完備されているため、荷物が多い方でも安心です。
さらに、室内洗濯機置場やエアコン、モニターホン、オートロック、防犯カメラなどのセキュリティ設備が整っており、安心して生活できる環境が整っています。
周辺環境も魅力的です。住宅街に位置しているため、静かな居住空間が保たれていますが、近くにはスーパーやコンビニもあり、日常の買い物に困ることはありません。
また、近隣には公園や飲食店も多く、生活利便性が高いエリアです。
在宅勤務を行う方にとっても、快適な作業環境が整っています。
広々としたLDKは、デスクを置いても余裕のあるスペースがあり、集中して作業することができます。
また、静かな住宅街の中にあるため、仕事に集中しやすい環境が整っています。
「プレジオ松屋町」は、快適な生活空間と充実した設備を兼ね備えた賃貸マンションです。
ぜひ一度、実際にご覧いただき、その魅力を体感してみてください。
お電話やメールでのお問い合わせをお待ちしております。

部屋ID:R010566
賃料: 290,000円
共益費・管理費:20,000円
最寄駅1:大阪メトロ長堀鶴見緑地線「松屋町」駅まで 徒歩4分
現状:空室
所在地: 大阪府大阪市中央区松屋町住吉丁目6-13
成約状況:空室
物件種別:賃貸マンション
物件階層:12階建
完成年月:令和6年1月(築2年)
取引形態:仲介
EV:あり
掲載日時:2026-04-28
所在階数:12階
方角:
敷金:ー円
礼金:ー円(税別)
保証金:ー円
解約引:ー円
その他費用:ー
火災保険:ー円(非課税)
契約種別:
契約期間:2年