この物件の情報は「掲載日」時点の内容になります。
お探しの物件の最新の状況は以下ボタンよりお問い合わせお願いします。
お問い合わせ大阪市西区に位置する「本町セントラルハイツ」は、便利な立地にある区分所有の物件です。
最寄り駅は大阪メトロ四つ橋線の本町駅で、徒歩わずか2分というアクセスの良さが魅力です。
周辺は落ち着いた住宅街でありながら、オフィスビルや商業施設が近く、利便性が高い環境が整っています。
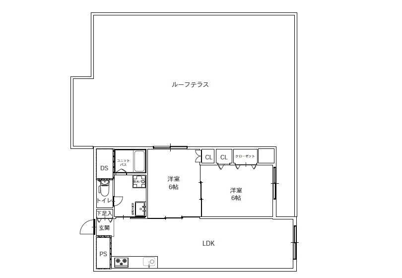
この物件は2LDKの間取りを持ち、家賃は140,000円です。
5階に位置する角部屋で、2面以上のバルコニーがあり、自然光を取り入れやすい設計となっています。
リフォームが施されており、現代的な生活スタイルに対応した快適な住空間を提供します。
特に、ルーフバルコニーはプライベートな空間として利用でき、ちょっとした憩いの場やアウトドアの楽しみを提供します。
設備面では、ガスキッチンをはじめ、コンロは3口以上のシステムキッチンを完備。
カウンターキッチンは、料理をしながら家族や友人とのコミュニケーションを楽しむことができる設計です。
バストイレは別々に配置され、快適な生活をサポートします。
浴室には乾燥機能や追い焚き機能が付いており、いつでも快適な入浴が可能です。
脱衣所や独立洗面台も完備し、生活の利便性を高めています。
さらに、居住空間の快適さを重視した設計がなされ、クローゼットが2ヶ所以上あり、収納に困ることはありません。
モニターホンやオートロック、防犯カメラが設置されており、セキュリティ面でも安心して生活できます。
宅配ボックスや駐輪場、バイク置き場も完備しており、生活の利便性を向上させています。
在宅勤務が増える中、自宅での快適な作業環境も大切です。
本町セントラルハイツでは、広々としたリビングスペースを活用し、仕事とプライベートを両立させることができます。
静かな住宅街に位置しているため、集中して仕事に取り組むことができる理想的な環境が整っています。
周辺には、スーパーマーケットや飲食店、カフェが充実しており、買い物や食事に困ることはありません。
交通の便が非常に良いため、通勤やレジャーにも便利です。
本町セントラルハイツは、アクセスの良さ、充実した設備、快適な住環境が整った物件です。
ぜひ一度、ご覧いただきたい物件です。

部屋ID:R010528
賃料: 140,000円
共益費・管理費:10,000円
最寄駅1:大阪メトロ四つ橋線「本町」駅まで 徒歩2分
最寄駅2:大阪メトロ中央線「本町」駅まで 徒歩2分
最寄駅3:大阪メトロ御堂筋線「本町」駅まで 徒歩2分
現状:空室
所在地: 大阪府大阪市西区西本町1丁目11-1
成約状況:空室
物件種別:区分所有
物件階層:14階建地下1階付き
完成年月:昭和55年7月(築46年)
取引形態:仲介
EV:あり
掲載日時:2026-04-28
所在階数:5階
方角:
敷金:ー円
礼金:140,000円(税別)
保証金:ー円
解約引:ー円
その他費用:ー
火災保険:ー円(非課税)
契約種別:
契約期間: