この物件の情報は「掲載日」時点の内容になります。
お探しの物件の最新の状況は以下ボタンよりお問い合わせお願いします。
お問い合わせ「梅田」
関西圏で知らない人はいないですよね
今や関西だけにとどまらず グラングリーン開発により
その名は全国、いや世界に響くほど
世界都市OSAKAを代表する 商業エリア「梅田」
それを証明するかのように グラングリーンの新築マンション
周りにも 「折角だから1件買いたい」
とおっしゃる方が結構いました 中々の注目度です
蓋を開けると何のその 1億円以下の区分はなく
購入も抽選方式 その倍率なんと30倍以上だとか
もちろん、周りでは買えた人がいませんでした
今や内需や国内だけのお金で経済は回っておりません
まさに外資、インバウンドによるお金が
経済のみならず不動産価格にも強く影響しております
少々話はそれてしましましたが
そんな人気商業地、梅田の
徒歩圏内に位置する分譲マンション
いや、むしろもう梅田です。
阪急梅田駅の東側 茶屋町の南
都島本通りを南に渡ったすぐ
小さな業種から大手まで
多種多様な商業が入り組み出すエリアですね
梅田 City Villa Act III
この商業エリアを体現するような 区分所有マンション
マンションと一体で商業施設併設
梅田の一部と言っても過言ではないでしょう。
そんな立地ですからね
当然ながら事務所利用も可能
住んでいる人と事務所利用 どっちが多いのでしょうね?
収益用として保有・賃貸している方も
かなり多いと思いますので
意外と住んでいる人が多いのかも知れません
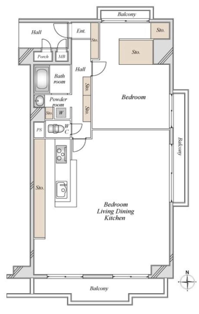
室内はリフォーム済で清潔感と高級感を
同時に感じる事ができます
こんな物件が・・・
月々支払い約141,447円!!
(借入額5,380万円/35年/変動金利0.575%・銀行、審査状況により変動します。)
今のお家賃と比べてみて下さい。
資金の気になる方は住宅ローン相談だけでも承ります。
まずはお気軽にお問い合わせ下さい♪
※外部所有者は管理運営協力金2,000円/月
※会社・事務所利用する方は会社分担金4,000円/月
別途必要になりますのでご注意を

部屋ID:R010117
販売希望価格:5,380万円(税込)
最寄駅1:大阪メトロ谷町線「中崎町」駅まで 徒歩3分
最寄駅2:阪急神戸本線「大阪梅田」駅まで 徒歩6分
最寄駅3:大阪メトロ御堂筋線「梅田」駅まで 徒歩7分
現状:空室
所在地: 大阪府大阪市北区堂山町丁目
物件種別:区分所有
物件構造:鉄骨鉄筋コンクリート
物件階層:14階建地下1階付き
完成年月:昭和55年10月(築46年)
取引形態:仲介
EV:あり
用途:住居・事務所
建ぺい率:
容積率:
掲載日時:2026-01-13
所在階数:8階
総戸数:147戸
方角:東南角部屋
管理費:14,240円
修繕積立金:13,520円
その他費用:入居時に引越し協力金15,000円要(日曜は別途4,000円)、管理運営協力金2,000円/月(外部居住者の場合)、会社負担金4,000円/月(会社・事務所で利用の場合)
現状年収:ー円
利回り:%
満室年収:ー円