この物件の情報は「掲載日」時点の内容になります。
お探しの物件の最新の状況は以下ボタンよりお問い合わせお願いします。
お問い合わせ
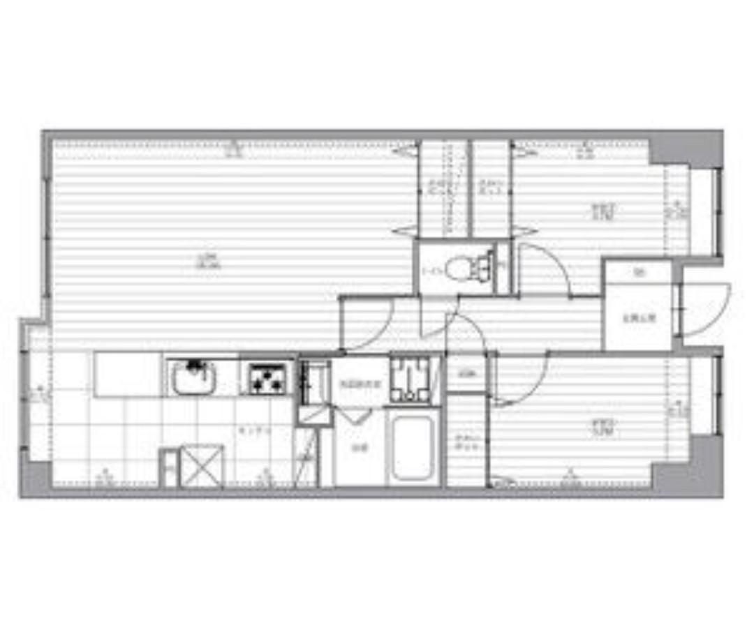
部屋ID:R009662
賃料: 162,000円
共益費・管理費:9,000円
最寄駅1:大阪メトロ堺筋線「恵美須町」駅まで 徒歩3分
最寄駅2:南海高野線「今宮戎」駅まで 徒歩9分
最寄駅3:大阪メトロ御堂筋線「大国町」駅まで 徒歩12分
現状:空室
所在地: 大阪府大阪市浪速区日本橋東3丁目14-10
成約状況:空室
物件種別:賃貸マンション
物件階層:14階建
完成年月:平成9年7月(築29年)
取引形態:仲介
EV:あり
掲載日時:2026-05-01
所在階数:7階
方角:
敷金:ー円
礼金:171,000円(税別)
保証金:ー円
解約引:ー円
その他費用:ー
火災保険:ー円(非課税)
契約種別:普通借家
契約期間:2年