この物件の情報は「掲載日」時点の内容になります。
お探しの物件の最新の状況は以下ボタンよりお問い合わせお願いします。
お問い合わせ
部屋ID:R009631
賃料: 113,010円
共益費・管理費:8,990円
最寄駅1:大阪メトロ堺筋線「堺筋本町」駅まで 徒歩4分
最寄駅2:大阪メトロ長堀鶴見緑地線「松屋町」駅まで 徒歩7分
現状:空室
所在地: 大阪府大阪市中央区北久宝寺町1丁目3-9
成約状況:空室
物件種別:賃貸マンション
物件階層:15階建地下1階付き
完成年月:令和4年1月(築4年)
取引形態:仲介
EV:あり
掲載日時:2026-01-09
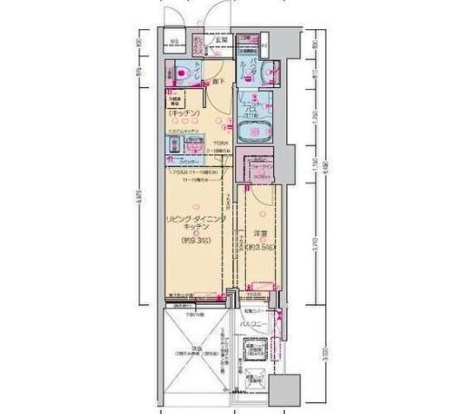
所在階数:5階
方角:西
敷金:0円
礼金:150,000円(税別)
保証金:ー円
解約引:ー円
その他費用:・プレサポ24:990円(税込)
火災保険:11,000円(非課税)
契約種別:
契約期間:1年