兵庫県芦屋市に位置する「グラビスコート芦屋」は、JR神戸線(大阪~神戸)の芦屋駅から徒歩5分という便利な立地に恵まれています。
周辺は穏やかな住宅街で、静かで落ち着いた環境の中で生活をお楽しみいただけます。
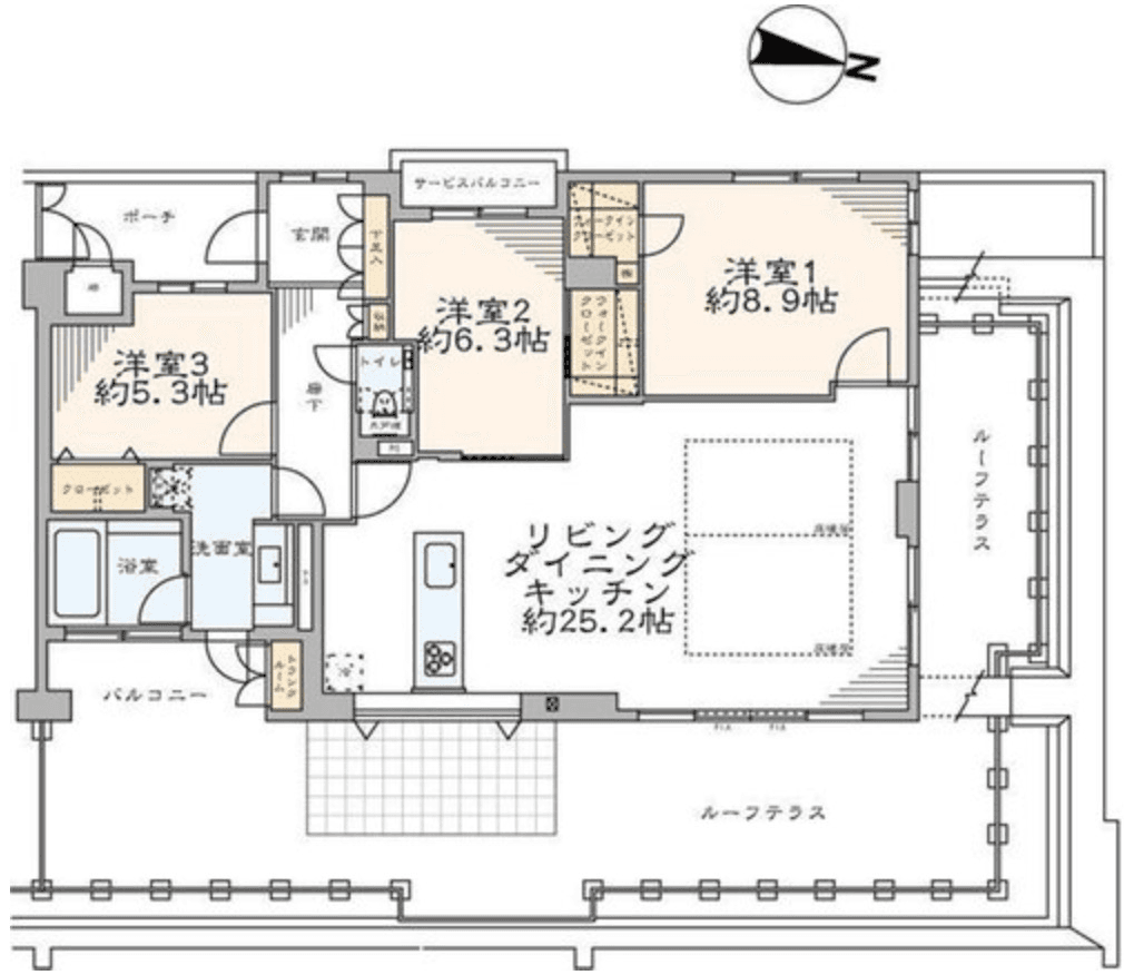
間取りは3LDKで、広々とした空間を持ち、家族や友人との楽しい時間を過ごすのに最適です。
この物件は8階建ての最上階に位置し、角部屋ならではの明るい光と風を感じながら生活できます。
また、ルーフバルコニーは、心地よい風を感じながらくつろげる特別な空間を提供します。
アウトドアが好きな方や、プライベートな空間を重視される方には特に魅力的です。
室内はリフォームやリノベーションが可能で、ご自身のライフスタイルに合わせた空間を作り上げることができます。
設備も充実しており、ガスキッチンにコンロは3口以上、システムキッチンやカウンターキッチンが完備されているため、お料理好きな方にもご満足いただけるでしょう。
バス・トイレは別々で、バスタブは1216サイズ以上、浴室乾燥機や脱衣所、独立洗面台もあり、日常の生活を快適にサポートします。
セキュリティ面も考慮されており、オートロックや防犯カメラ、機械警備が整っているため、安心して生活できます。
また、宅配ボックスや駐車場、駐輪場、バイク置き場も完備されており、利便性が高いのも特徴です。
室内にはウォークインクローゼットやシューズボックスもあり、収納スペースも充実していますので、在宅勤務やライフスタイルに合わせたゆとりのある生活が実現できます。
買い物の利便性も良好で、周辺にはスーパーマーケットやコンビニエンスストア、飲食店などが揃っており、日常の買い物がスムーズに行えます。
交通の便も良く、芦屋駅からは神戸市内や大阪方面へのアクセスが容易ですので、通勤や通学にも非常に便利です。
「グラビスコート芦屋」は、快適な生活を求める方にふさわしい物件です。ぜひ一度ご覧になって、その魅力を実感してみてください。
ご興味がございましたら、お気軽にお問い合わせください。

部屋ID:R010315
販売希望価格:1億990万円(税込)
最寄駅1:JR神戸線(大阪~神戸)「芦屋」駅まで 徒歩5分
現状:空室
所在地: 兵庫県芦屋市茶屋之町丁目6-8
物件種別:区分所有
物件構造:鉄筋コンクリート造
物件階層:8階建
完成年月:平成16年3月(築22年)
取引形態:仲介
EV:あり
用途:住居
建ぺい率:
容積率:
掲載日時:2026-01-31
所在階数:8階
総戸数:39戸
方角:
管理費:13,090円
修繕積立金:23,160円
その他費用:ー
現状年収:ー円
利回り:%
満室年収:ー円