この物件の情報は「掲載日」時点の内容になります。
お探しの物件の最新の状況は以下ボタンよりお問い合わせお願いします。
お問い合わせ需要がありながら
売物件の少ない貴重な天満橋エリア
京都方面への移動
逆も然り流入の多い天満橋です
京阪本線「天満橋駅」徒歩約6分
そして谷町線も利用可能
ビジネスエリアとして名高い天満橋は
多種多様な法人が集まる立地
金融の街「北浜」の影響を受け 金融・輸入業の法人
天満橋の影響による運輸業や卸業
大阪府庁や法務局など官公庁に関わる
士業や設計・建築事務所
本当の意味で多種多様な需要があり
それに伴うビジネス街が形成されております
基本はビジネスエリアではありますが
昔から人は住んでます
歴史ある街として発展しており
長年ここを住居としている方もおられます
歴史ある=古くからの建物が多い
こればかりは如何ともし難いところ
近年はタワーマンション建設など
この周辺でも再開発が一気に進みましたが
まだまだレトロな建築物も多くのこり
単身用マンションや小規模ビル
タワーマンション以外
特にファミリー向けの分譲マンションは
レトロが主流のエリアになってしまいます
そして今回の物件も例に漏れずレトロ
とは言え1983年築
これがどういう意味合いを持つのか
不動産事情に詳しい方ならご存知ですよね
「新耐震基準」以降に建築された建物
もちろん新耐震以降だからと言って
手放しで安心出来る訳ではありませんが
一つの指標としては使えますよね
ただ貴重度としては立地以外に 「事務所利用可能」な所
これは意外にポイント上がります
ご自身が住む分には あまり気にしないかも知れませんが
この差で収益物件としての需要が 大きく変わります
ただ、こちらのお部屋は収益よりも
自己所有での利用が一番宜しいかと思います
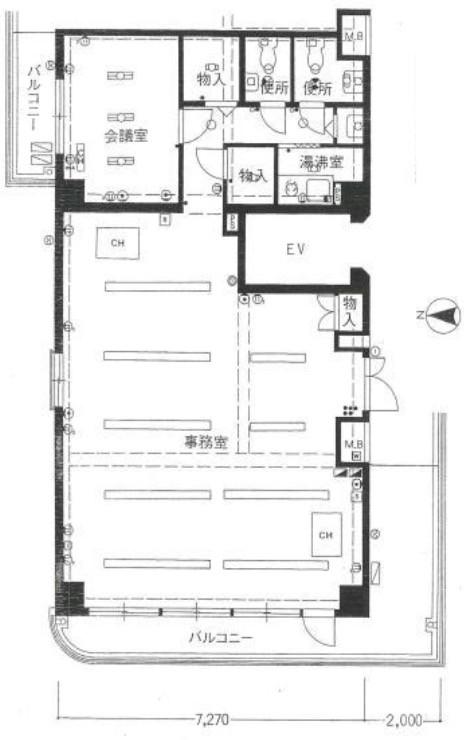
現事務所仕様な状態
室内は83.51㎡の都心部区分所有にしては
かなり贅沢な広さとなっております
現状の間取りもまあ、悪くありません
広々としてofficeスペースに会議室が一つ
給湯室や水回りは固まっており
トイレは2箇所ですね
大まかな配置はこのままで
細かい使い勝手を変更したり
壁や床の色を変えるのも面白そうですね
個性のあるrenovationにてデザイン力を高めれば
イメージの良いofficeができる予感がします
ーーーーーーーーーーーーーーーーーーーーーーーーー
リノベーション収益/提案が得意な不動産会社
不動産の管理・運用・総合コンサルティング
お気軽にご相談下さい。

部屋ID:R010278
販売希望価格:4,500万円(税込)
最寄駅1:大阪メトロ谷町線「天満橋」駅まで 徒歩4分
最寄駅2:京阪本線「天満橋」駅まで 徒歩4分
現状:空室
所在地: 大阪府大阪市中央区釣鐘町1丁目
物件種別:区分所有
物件構造:鉄骨鉄筋コンクリート
物件階層:10階建
完成年月:昭和59年8月(築41年)
取引形態:仲介
EV:あり
用途:事務所・収益
建ぺい率:
容積率:
掲載日時:2025-11-29
所在階数:3階
総戸数:--戸
方角:北・南・西三方角部屋
管理費:23,140円
修繕積立金:21,710円
その他費用:ー
現状年収:ー円
利回り:%
満室年収:ー円