この物件の情報は「掲載日」時点の内容になります。
お探しの物件の最新の状況は以下ボタンよりお問い合わせお願いします。
お問い合わせまず最初にはっきりと伝えておきます
'超'好立地です
最寄駅は「淀屋橋」
御堂筋沿線では梅田の次の駅
「淀屋橋」と言えば
大阪市内で働く、ビジネスをする
そんん方にとっては非常に重要なエリア
梅田・難波も主要地の一つですが
どちらかと言うと商業メインのエリア
やはりビジネスの中心地といえば
「淀屋橋」に勝るエリアはありません
淀屋橋再開発の要となる
ツインタワープロジェクトを皮切りに
新たなステージへ進化する期待の街
そんな期待の「淀屋橋」徒歩約3分
貴重な駅近立地の「新耐震」物件
日々忙しく働く方への職住近接を体現した
住まい としての利用は勿論の事
事務所利用も可能 なので
自社officeやstay可能な大阪拠点
として多岐に渡り転用できます
途中チラッと触れましたが
こちらの建物は「新耐震基準」
築古レトロが主流の
都会の一等地において貴重な物件ですね
新耐震であれば絶対安心
と言う訳ではありませんが、
一つの安全指標として納得できます
そして事務所利用を検討している方にとっては
銀行融資の評価が出やすい安心もありますね
駅近交通至便!!
大阪メトロ御堂筋線/京阪本線
「淀屋橋駅」徒歩約3分
大阪メトロ御堂筋線/中央線/四つ橋線
「本町駅」徒歩約5分
4沿線2駅利用可能なマルチアクセス!!
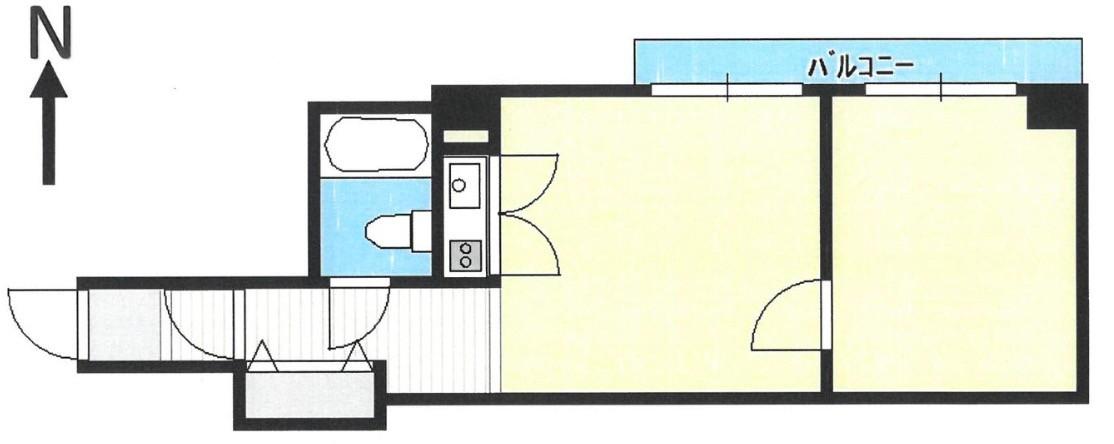
室内は29.52㎡の1DK
少々小ぶりではありますが
狭過ぎず広過ぎずのサイズ感
基本は住居タイプではありますが
トイレ・浴室一緒の3点ユニット
そして洗濯場や洗面脱衣場なし
バルコニーは細長いタイプ
あまり居住に向いているとは言い難い所
実際、ガッツリ住まうと言うより
事務所or寝泊まり出来る拠点
として使用しているのが現実的ですね
とにかく立地の良さが際立ちます
自己使用しなくなっても
表面的に綺麗な状態であれば
賃貸や売却等、運用や処分も比較的容易に感じます
ーーーーーーーーーーーーーーーーーーー
リノベーション収益/提案が得意な不動産会社
不動産の管理・運用・総合コンサルティング

部屋ID:R010277
販売希望価格:1,280万円(税込)
最寄駅1:大阪メトロ御堂筋線「淀屋橋」駅まで 徒歩3分
最寄駅2:京阪本線「淀屋橋」駅まで 徒歩7分
最寄駅3:大阪メトロ御堂筋線「本町」駅まで 徒歩6分
現状:空室
所在地: 大阪府大阪市中央区平野町3丁目
物件種別:区分所有
物件構造:鉄骨鉄筋コンクリート
物件階層:11階建地下1階付き
完成年月:昭和58年7月(築43年)
取引形態:仲介
EV:1基
用途:住居・事務所・収益
建ぺい率:
容積率:
掲載日時:2026-01-31
所在階数:5階
総戸数:125戸
方角:北
管理費:6,820円
修繕積立金:11,800円
その他費用:ー
現状年収:ー円
利回り:%
満室年収:ー円