この物件の情報は「掲載日」時点の内容になります。
お探しの物件の最新の状況は以下ボタンよりお問い合わせお願いします。
お問い合わせ
部屋ID:R010046
販売希望価格:3,480万円(税込)
最寄駅2:大阪メトロ長堀鶴見緑地線「心斎橋」駅まで 徒歩4分
最寄駅3:大阪メトロ御堂筋線「心斎橋」駅まで 徒歩4分
現状:空室
所在地: 大阪府大阪市中央区南船場4丁目
物件種別:区分所有
物件構造:鉄骨鉄筋コンクリート・鉄筋コンクリート
物件階層:12階建
完成年月:昭和60年2月(築40年)
取引形態:仲介
EV:あり
用途:住居
建ぺい率:
容積率:
掲載日時:2025-11-15
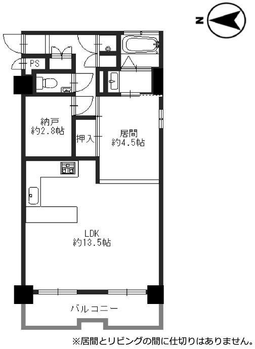
所在階数:3階
総戸数:113戸
方角:西
管理費:12,410円
修繕積立金:15,402円
その他費用:ー
現状年収:ー円
利回り:%
満室年収:ー円