この物件の情報は「掲載日」時点の内容になります。
お探しの物件の最新の状況は以下ボタンよりお問い合わせお願いします。
お問い合わせ
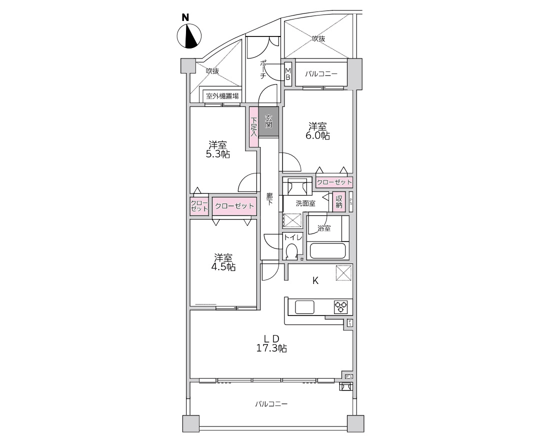
部屋ID:R009822
販売希望価格:3,250万円(税込)
最寄駅1:阪急今津線「仁川」駅まで 徒歩17分
現状:空室
所在地: 兵庫県西宮市段上町6丁目14-16
物件種別:区分所有
物件構造:鉄筋コンクリート造
物件階層:5階建
完成年月:平成15年9月(築23年)
取引形態:仲介
EV:あり
用途:住居
建ぺい率:
容積率:
掲載日時:2025-06-30
所在階数:2階
総戸数:47戸
方角:
管理費:5,600円
修繕積立金:18,200円
その他費用:ー
現状年収:ー円
利回り:%
満室年収:ー円