この物件の情報は「掲載日」時点の内容になります。
お探しの物件の最新の状況は以下ボタンよりお問い合わせお願いします。
お問い合わせ
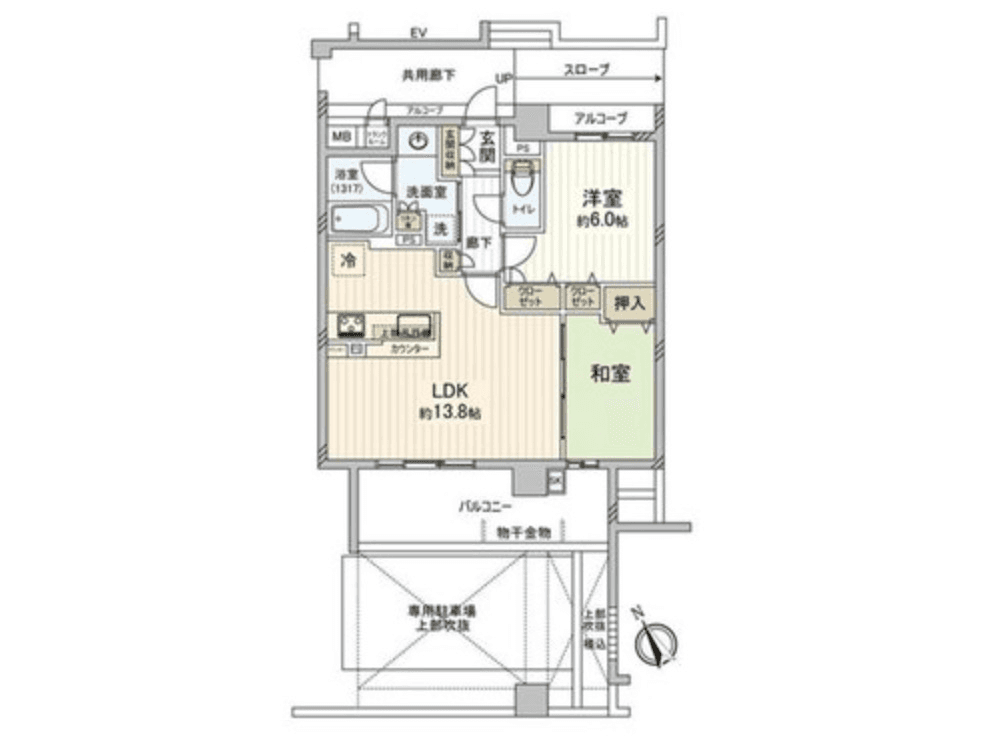
部屋ID:R009634
販売希望価格:4,450万円(税込)
最寄駅1:阪神本線「甲子園」駅まで 徒歩5分
現状:居住中
所在地: 兵庫県西宮市甲子園五番町丁目13-33
物件種別:区分所有
物件構造:鉄筋コンクリート造
物件階層:4階建
完成年月:令和元年5月(築7年)
取引形態:仲介
EV:あり
用途:住居
建ぺい率:
容積率:
掲載日時:2025-06-06
所在階数:1階
総戸数:24戸
方角:
管理費:7,610円
修繕積立金:6,390円
その他費用:自治会費:2000円/年額 駐車場使用料:20000円/月額
現状年収:ー円
利回り:%
満室年収:ー円