この物件の情報は「掲載日」時点の内容になります。
お探しの物件の最新の状況は以下ボタンよりお問い合わせお願いします。
お問い合わせ
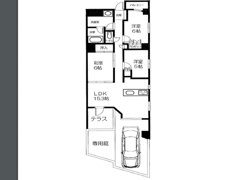
部屋ID:R009589
販売希望価格:3,580万円(税込)
最寄駅1:阪急甲陽線「苦楽園口」駅まで 徒歩7分
現状:空室
所在地: 兵庫県西宮市神原丁目2-8
物件種別:区分所有
物件構造:鉄筋コンクリート
物件階層:地下7階付き
完成年月:平成12年3月(築26年)
取引形態:仲介
EV:あり
用途:住居
建ぺい率:
容積率:
掲載日時:2025-06-17
所在階数:1階
総戸数:27戸
方角:
管理費:13,700円
修繕積立金:21,100円
その他費用:専有庭面積:960円/月 駐車場利用料:20,000円
現状年収:ー円
利回り:%
満室年収:ー円