この物件の情報は「掲載日」時点の内容になります。
お探しの物件の最新の状況は以下ボタンよりお問い合わせお願いします。
お問い合わせ
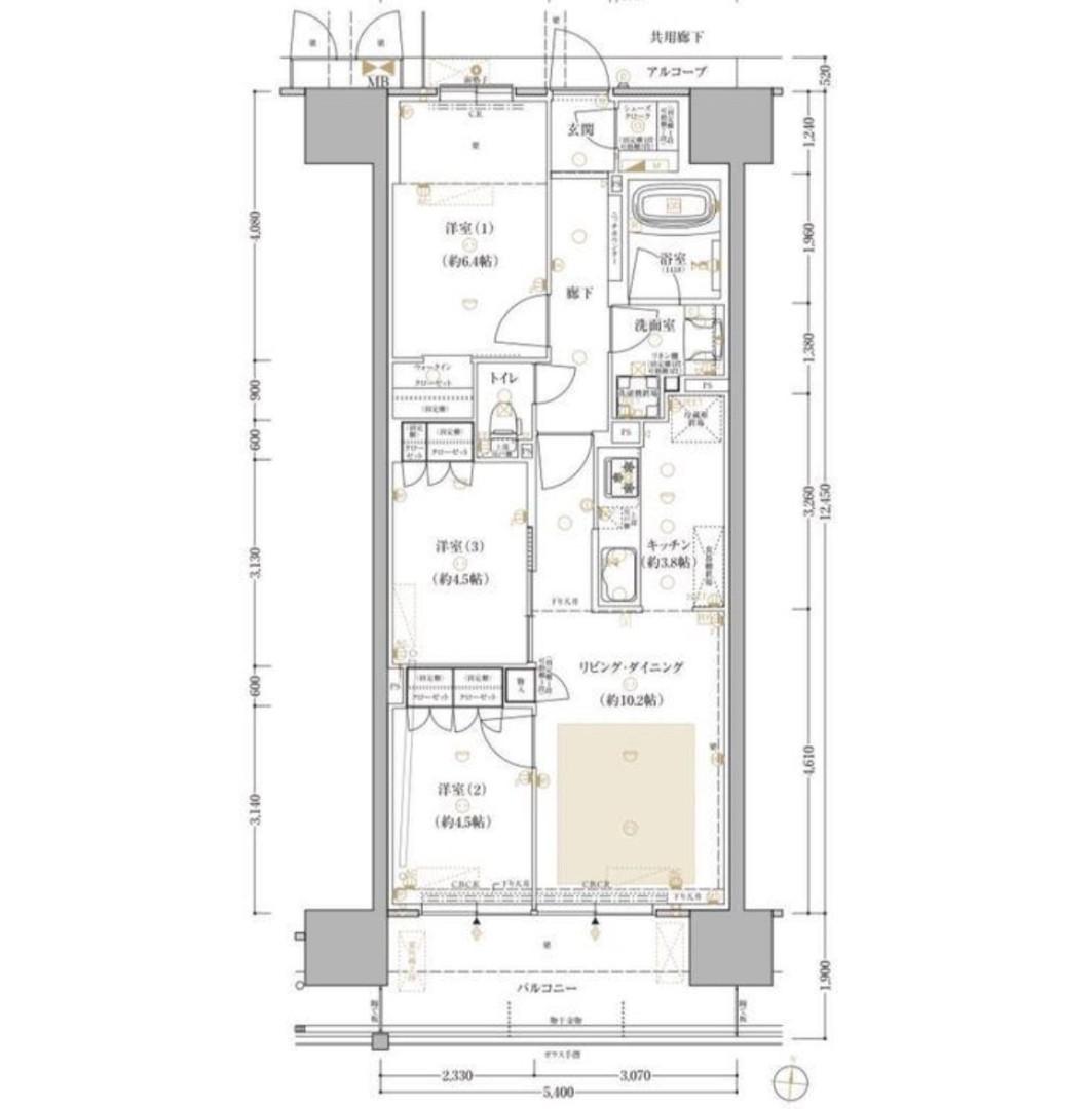
部屋ID:R009120
賃料: 155,000円
共益費・管理費:ー円
最寄駅1:近鉄南大阪線「針中野」駅まで 徒歩1分
現状:空室
所在地: 大阪府大阪市東住吉区駒川5丁目23-13
成約状況:空室
物件種別:賃貸マンション
物件階層:15階建地下1階付き
完成年月:令和4年2月(築4年)
取引形態:ー
EV:あり
掲載日時:2026-02-06
所在階数:2階
方角:
敷金:155,000円
礼金:155,000円(税別)
保証金:ー円
解約引:ー円
その他費用:ー
火災保険:ー円(非課税)
契約種別:定期借家
契約期間:4年