この物件の情報は「掲載日」時点の内容になります。
お探しの物件の最新の状況は以下ボタンよりお問い合わせお願いします。
お問い合わせ
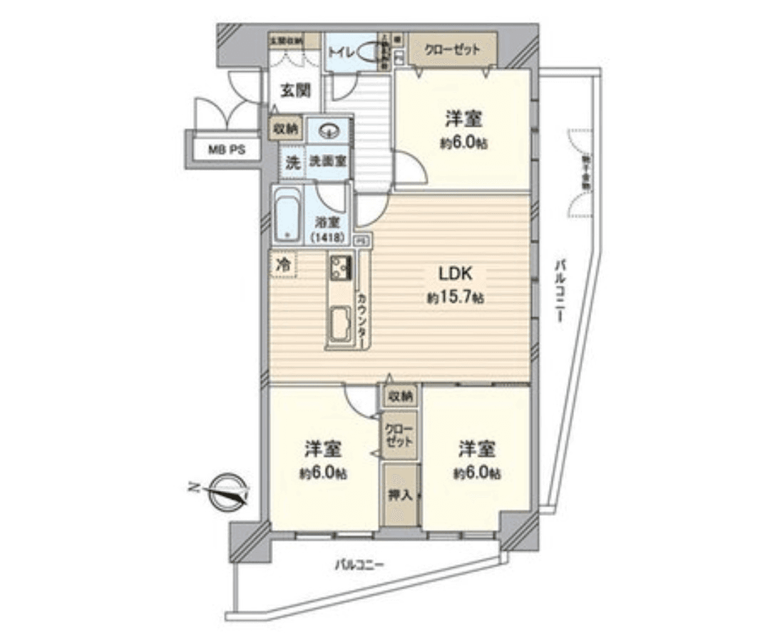
部屋ID:R009087
販売希望価格:2,780万円(税込)
最寄駅1:京阪本線「香里園」駅まで 徒歩4分
現状:空室
所在地: 大阪府寝屋川市香里北之町丁目1-1
物件種別:区分所有
物件構造:鉄筋コンクリート
物件階層:15階建
完成年月:2000.3(築ー)
取引形態:ー
EV:あり
用途:住居
建ぺい率:
容積率:
掲載日時:2024-10-26
所在階数:3階
総戸数:56戸
方角:南
管理費:11,000円
修繕積立金:12,040円
その他費用:ー
現状年収:ー円
利回り:%
満室年収:ー円