この物件の情報は「掲載日」時点の内容になります。
お探しの物件の最新の状況は以下ボタンよりお問い合わせお願いします。
お問い合わせ
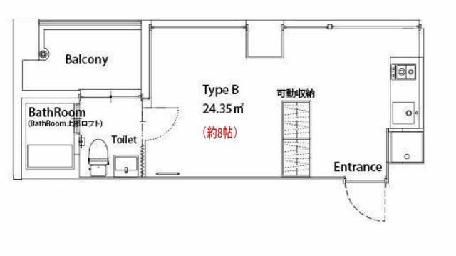
部屋ID:R004635
賃料: 61,000円
共益費・管理費:7,000円
最寄駅1:大阪メトロ中央線「弁天町」駅まで 徒歩6分
最寄駅2:大阪環状線「弁天町」駅まで 徒歩7分
現状:空室
所在地: 大阪府大阪市港区市岡元町3丁目1-19
成約状況:空室
物件種別:賃貸マンション
物件階層:8階建
完成年月:平成19年11月(築19年)
取引形態:ー
EV:あり
掲載日時:2022-04-18
所在階数:2階
方角:東
敷金:0円
礼金:61,000円(税別)
保証金:ー円
解約引:ー円
その他費用:ー
火災保険:15,000円(非課税)
契約種別:普通借家契約
契約期間:2年